the Victoria,
built to grow.
4 Bed
3 Bath
2370 sqft
Introducing the Victoria.
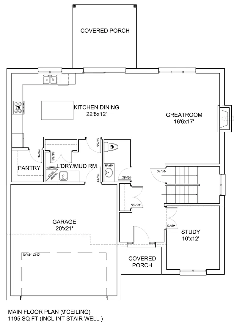
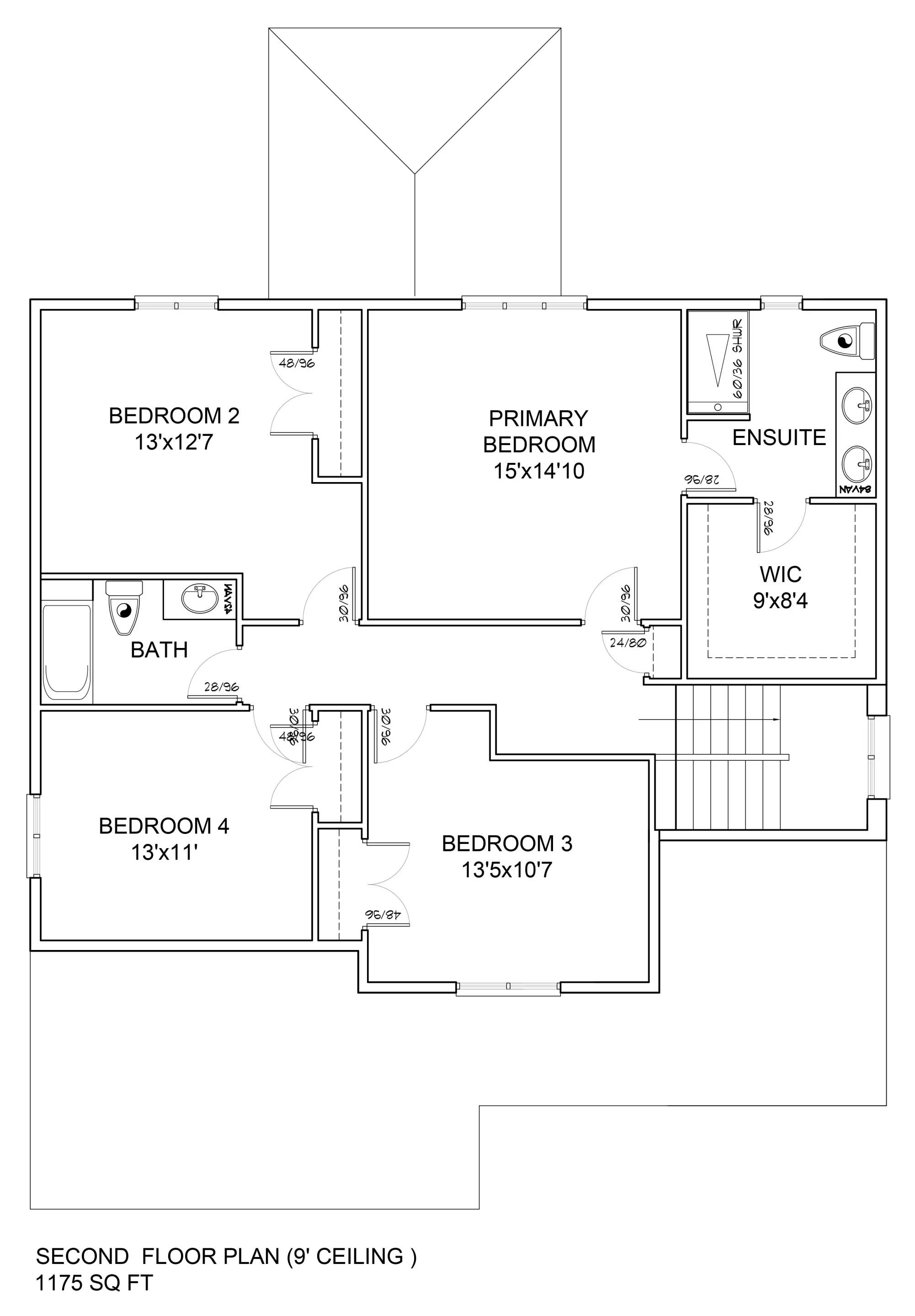
The Victoria is a carefully designed 2-storey family home that balances everyday comfort with modern living and thoughtful geometry. With a total above-grade living area of 2,370 sq. ft., this layout delivers generous spaces, functional flow, and flexible areas for families of all sizes. (1,195 sq. ft. on the main floor + 1,175 sq. ft. on the second floor).
The main floor welcomes you with an open-concept kitchen and dining area that flows into a bright great room — defined by clean lines and efficient spatial distribution — ideal for gathering, entertaining, or relaxing.
On the main level you’ll also find a private study/home office (approx. 120 sq. ft.), a laundry/mud room, and an attached double-car garage (approx. 420 sq. ft.), all positioned to support everyday living with clarity and purpose.
Upstairs, the second floor organizes the private bedroom zones with careful geometric logic. The primary suite (approx. 223 sq. ft.) features a spacious walk-in closet and a spa-inspired ensuite, while three additional well-proportioned bedrooms (approx. 142–164 sq. ft. each) are located nearby — each arranged to maximize privacy and natural light.
A full family bathroom and ample circulation space complete the second-floor plan.
The Victoria’s thoughtful design brings balance and clarity to everyday life, with spaces that connect naturally and adapt to your family’s changing needs.
Rooms
Bedroom 1
15 ft x 14 ft
Bedroom 2
13 ft x 12 ft
Bedroom 3
13 ft x 10 ft
Bedroom 4
13 ft x 11 ft
Kitchen
22 ft x 12 ft
Great Room
16 ft in x 17 ft
Building
Architecture
2 Storey Bungalow
Style
Detached
Exterior Finish
Stone, Brick, Vinyl Siding
Basement
Full (Unfinished)
Heating
Forced Air
Cooling
Central Air Conditioning
Appliances
Water Heater – Tankless/ Owned
Building Amenities
Gas Fireplace
Structures
Deck





