the Vivienne II,
built to grow.
3 Bed
2 Bath
1936 sqft
VIEW LISTING
417 Ontario St., Watford ON
Introducing the Vivienne II.
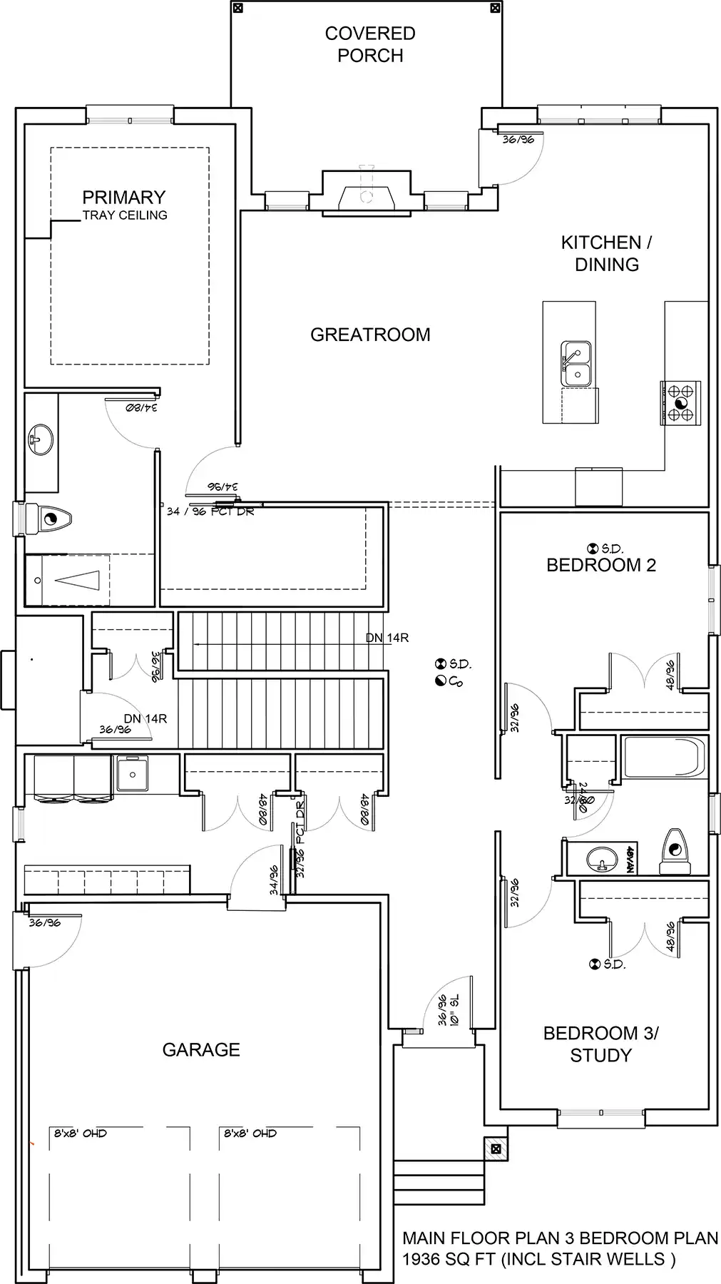
This is a beautifully reimagined 1,936 sq. ft. bungalow by Branch Homes, thoughtfully designed to bring modern comfort, timeless style, and everyday functionality together.
This 3-bedroom, 2-bathroom home features an expanded open-concept layout with a bright kitchen and large island that flows into the great room — complete with a tray ceiling, gas fireplace, and access to a covered porch ideal for relaxing or entertaining. Engineered hardwood flooring and premium finishes throughout create a warm and welcoming atmosphere.
The primary suite is a true retreat, featuring a walk-in closet and a spa-inspired ensuite with a zero-entry glass shower and double vanity. A convenient main-floor laundry and mudroom off the garage complete the everyday ease of this design.
Visit our model at 417 Ontario Street, Watford Ontario!
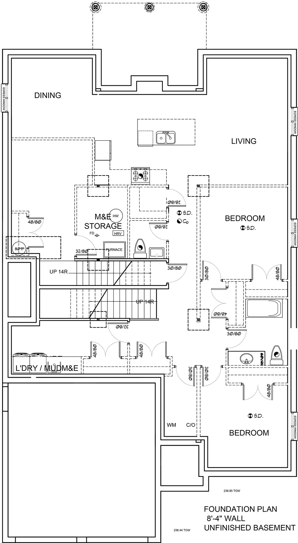
The lower level offers a separate side entrance and is roughed-in for a kitchen and bathroom, with plans allowing for two additional bedrooms and a spacious living area — providing remarkable flexibility for multi-generational living, rental income, or future expansion.
Built to high efficiency standards, the Vivienne II includes enhanced insulation, HRV ventilation, and EV-ready garage power — blending modern innovation with the peace of country living.
From its refined design and expanded layout to its future-ready features, the Vivienne II is the perfect balance of style, comfort, and possibility.
Rooms
Bedroom 1
13 ft x 14 ft
Bedroom 2
11 ft x 12 ft
Bedroom 3
11 ft x 12 ft
Kitchen
12 ft x 17 ft
Bathroom 1
9 ft x 11 ft
Bathroom 2
6 ft in x 9 ft
Great Room
14 ft in x 18 ft
Building
Architecture
Bungalow
Style
Detached
Exterior Finish
Stone, Brick, Vinyl Siding
Basement
Full (Unfinished)
Heating
Forced Air
Cooling
Central Air Conditioning
Appliances
Water Heater – Tankless/ Owned
Building Amenities
Gas Fireplace
Structures
Deck
Discover homes designed for real life, in communities built to grow.
VIEW LISTING
417 Ontario St., Watford ON






